
em
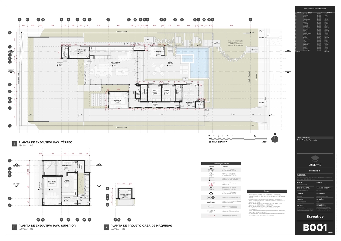
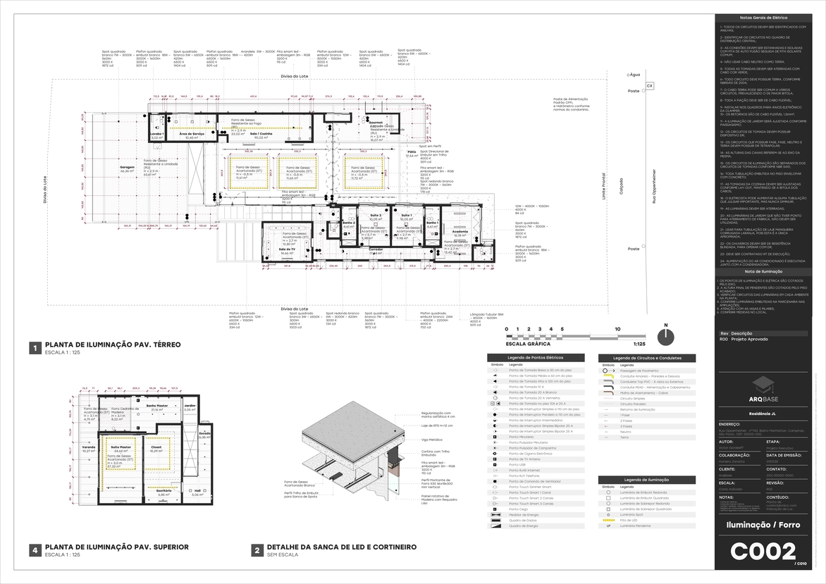
Um projeto executivo completo
Revit

%20(1).png)


Veja como funciona um projeto residencial no Revit,
compatibilizado com as disciplinas de arquitetura, estrutura, elétrica, hidráulica e interiores.
Você não vai encontrar um projeto completo assim em nenhum outro lugar.

1
VISTA 3D
Arquitetura

2
VISTA 3D
Elétrica

3
VISTA 3D
Estrutura

4
VISTA 3D
Hidráulica


ARQUIVOS EM
Arquivos em .RVT para versões 2021 ou mais recente.
CADERNO DE
ARQUITETURA
CIVIL
CADERNO DE
CADERNO DE
ELÉTRICA
HIDRÁULICA
CADERNO DE
INTERIORES
CADERNO DE
CADERNO DE
DETALHES
+ BÔNUS EXCLUSIVO
TEMPLATE DE REVIT + FAMÍLIAS

-
Cotas de dimensões variadas em milímetros, centímetros e metros estilizáveis.
-
Marcadores de corte e elevação em três estilos diferentes, incluindo a marcação ABNT, além de identificadores de ambientes e espaços automáticos com tipos de área, acabamentos e comentários.
-
Marcadores para nível, seção, elevação e simbologias de norte em todas as escalas. Barras de escala dinâmicas para as folhas de layout.
-
Estilos de anotação de texto adaptáveis a todos os tamanhos de escala (métrico ou imperial).
-
Identificadores de mais de 70 categorias diferentes já configurados e estilizáveis.
-
30+ Tipos de paredes, incluindo paredes do sistema, paredes cortina de painéis, estruturais, cobogós, rodapés e drywall.
-
20+ Tipos de forros, incluindo montantes paramétricos, perfis, detalhes de sancas e muito mais.
-
40+ Pisos configurados para fazer seus projetos executivos, projetos humanizados, entornos e projetos urbanos.
-
20+ Esquadrias, incluindo portas e janelas editáveis com abertura controlável.
-
20+ Escadas e guarda-corpos, incluindo balaústres, cercados, perfis de espelho e piso personalizáveis.
-
50+ Famílias de sinalização, incluindo faixas, setas, placas, postes e muito mais.
-
6+ Tipos de postes paramétricos com fiação, iluminação, e materiais configurados.
-
9+ Famílias de veículos, incluindo ônibus, carros, vans, bicicletas e motos.
-
20+ Famílias de vegetação, incluindo RPCs configurados, arbustos e árvores 3D volumétricas controláveis.
-
Famílias de acessibilidade como pisos táteis de alerta, rebaixos de guia e placas.
-
50+ Famílias paramétricas, incluindo decorações e mobiliários como sofás, cadeiras, poltronas, mesas, cortinas e muito mais.
-
100+ Texturas configuradas, incluindo marcenarias, marmorarias, vidraçarias e serralherias.
-
Famílias de caixaria, gavetas e acessórios como puxadores, dobradiças, corrediças, painéis e chapas.
-
Famílias de volumes para estudos e ferramentas de corte para múltiplos elementos.
-
50+ Dispositivos de iluminação, incluindo tomadas, interruptores, quadros, disjuntores, bandejas de cabos, eletrodutos e famílias de iluminação prontas para cálculo luminotécnico.
-
50+ Equipamentos elétricos, incluindo ventiladores, ar condicionados, geladeiras, fogões, cooktops, coifas, lava louças, lava roupas, adegas, gavetas aquecidas, microondas, fornos, painéis elétricos e muito mais.
-
50+ Peças hidrossanitárias, incluindo torneiras, cubas, chuveiros, duchas higiênicas, bancadas paramétricas, caixas d’água, aquecedores, equipamentos de piscina, tubulações, conexões e pontos hidráulicos com simbologias.
-
Acompanha legendas de símbolos elétricos e hidráulicos, filtro de tubulações e eletrodutos, notas gerais e tabelas de componentes prontos para uso.
-
30+ Famílias com variações de tipos para diversos estilos de construção, incluindo pilares, vigas, fundações, lajes, peças pré-moldadas, paredes cortina, canteiro de obras e ferramentas.
-
Conjunto de telhados em 3Ds e básicos, incluindo ripas, caibros, terças, telhas, cumeeiras, rufos, calhas e outros.
-
Realize projetos de Steel Frame com as famílias de perfis e paredes cortinas paramétricas prontas para quantitativos.


Ao adquirir o projeto executivo você também receberá nosso Template de Revit + Famílias!

TEMPLATE COMPLETO COM MAIS DE
850
FAMÍLIAS PARAMÉTRICAS
ARQUITETURA, MOBILIÁRIO, INSTALAÇÕES, ESTRUTURA E URBANISMO

CONHEÇA TODAS AS FAMÍLIAS DO TEMPLATE:

O que está incluso?
✔
✔
✔
✔
✔
Acesso vitalício;
Projeto Residencial completo com:
Projeto de Arquitetura;
Projeto de Estrutura;
Projeto de Elétrica;
Projeto de Hidráulica;
Projeto de Interiores,
Caderno de Esquadrias;
Suporte via email
BÔNUS EXCLUSIVO
Template de Revit + Famílias
+ de 850 famílias;
Famílias de Mobiliário;
Famílias de Portas e Janelas;
Famílias de Paredes;
Famílias de Telhados;
Famílias de Escadas;
Famílias de Pisos e Revestimentos;
Famílias de Estrutura;
Famílias de Elétrica;
Famílias de Marcenaria,
Famílias de Hidráulica;
Famílias de Urbanismo e Vegetação,
Famílias de Forro e Iluminação;
Tabelas de Quantitativo;
Famílias de Anotações e Folhas;
Versão 2021 ou mais recente;
%20(1).png)
7 DIAS DE GARANTIA INCONDICIONAL

Você pode acessar o curso por 7 dias sem risco.
Se nesse período você achar que não faz sentido para sua carreira profissional, basta enviar um e-mail solicitando o reembolso que devolvemos 100% o valor do seu investimento.
PERGUNTAS FREQUENTES
.png)
PELO PROFESSOR E ARQUITETO
Homero Zanatta
Junto com a Gordeeff Arquitetura e Treinamentos, desenvolvi o Template Completo de Revit que usamos no escritório — e que facilita (muito!) a vida de quem está começando.
Sou arquiteto formado pela PUC Campinas, trabalho com projetos residenciais e comerciais em BIM, além de dar aulas de Revit.
Gosto de mostrar que o Revit não é um bicho de sete cabeças e que, com prática e os recursos certos, ele pode virar um grande aliado.
E é por isso que curto tanto compartilhar o que aprendi com quem está entrando agora nesse universo BIM.






















































































































































































